|
| 您當前的位置: 尾房網首頁 >> 尾房盤點 >> 古耕5000 |
|
|
|
點擊發布 <如上傳中遇到問題請與客服中心聯系——(010)58207539> |
|
| 所屬區域 |
開發區 |
 |
| 項目地址 |
開發區金馬路 |
| 開 發 商 |
大連開發區古耕5000開發有限公司 |
| 物業類別 |
公寓 |
| 建筑風格 |
無 |
| 裝修狀況 |
精裝修 |
| 銷售許可證 |
|
| 交通狀況 |
地鐵線:
環線位置:
公交線路: |
|
| 售樓處地址 |
開發區銀帆賓館對面 |
銷售熱線 |
87617188 87617288 |
| 付款方式 |
|
|
| 詳細信息 |
| 開盤日期 |
1980/1/1 |
入住日期 |
1980/1/1 |
| 區內配置設施 |
|
綠化率 |
|
| 物業管理費 |
|
停車費 |
|
| 物業公司 |
|
代理行 |
|
| 工程進度狀況 |
|
總套數 |
|
| 項目介紹 |
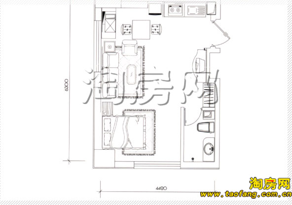
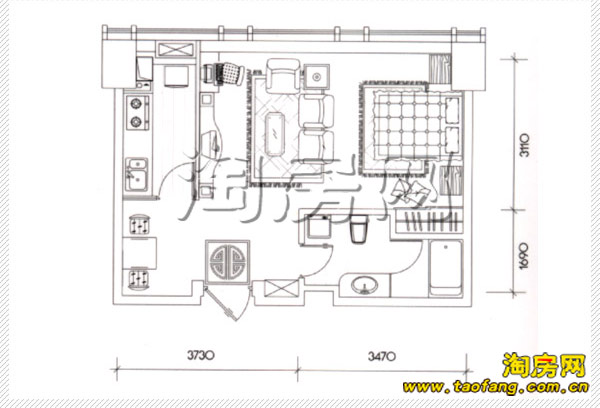
作為新城首個集精裝修小戶型酒店式公寓與 SOHO 商務公寓于一體的復合型項目,古耕 5000 國際公寓以其得天獨厚的地段、差異化的優勢定位、集文教、娛樂、購物、交通、金融、醫療等于一體的核心區位,自動工以來就一直牽動著來自開發區、大連市等眾多投資客的目光。其中小戶型公寓部分 3 0—80平米的多種精巧戶型,平層、越層的多樣化設計,南北通透、景致錯落、室外露臺等豐富的功能空間,更是為居者提供了“ 小戶型、大空間”的精神感受。而作為滿足新市區成長型企業、適應新市區辦公功能升級需要而增設的 SOHO 公寓部分,無論是在面積規劃、空間組合、物業水準方面都更多的考慮到了成長型企業“集約、節省、體面、大氣”的需求, 100-210平米的多樣化方正戶型,寬敞明亮、組合自由的商務空間,兼具獨立廚房和酒店級的物業服務的“商、住”特色,更是為新市區的成長型企業提供了“宜商宜住”的新選擇。而 3000 平米的超大 VIP 會所,動感活力的健身中心、球類館,輕松益智的棋牌室、麻將室、特色的休閑餐飲驛站,更是為擇居這里的業主提供了生活、精神雙富足的硬件保障
|
| 以上信息僅供參考,最終資訊請向開發商核實! |
| 網上置業 |
|
|